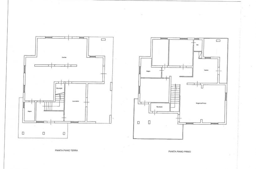
Oltrarno – Calcinaia – Vendesi signorile villa singola da rifinire. L'immobile si compone al piano terra in: ingresso, cucina abitabile, sala pranzo, soggiorno e bagno oltre a locale lavanderia e garage. Salendo al piano primo troviamo ulteriore cucina abitabile, ampio soggiorno, 2 camere matrimoniali di cui una con terrazza abitabile, cameretta e due bagni. Salendo ulterioriormente troviamo un' ampia mansarda abitabile con lucernario. Completa la proprietà il giardino di circa 1000 mq che circonda l'immobile sui quattro lati. Possibilità di ricavare fino a 6 camere. L'immobile si presta in maniera ottimale ad essre diviso in due unità immobiliari indipendenti. Ideale per famiglie numerose o per soluzioni GENITORI/FIGLI. Classe energetica: G – Rif. 1753-L

Prezzo trattabile: si

Categoria: residenziale
Tipologia: villa
Provincia: PI
Comune: Calcinaia
Frazione/Quartiere: Oltrarno
Indirizzo: via Allori, 156
Classe energetica: G
Indice di prestazione energetica: kwm2 – 160.00

Vani: 11
Camere: 5
Camere matrimoniali: 4
Bagni: 3
Cucina: abitabile
Soggiorno: si
Giardino privato: mq1000
Posti auto: 5

La Struttura Dispone Di

  • Giardino
  • Ingresso indipendente