BUTI – Appartamento con ingresso indipendente, terrazzo e locali accessori
NOSTRA ESCLUSIVA – Nel caratteristico borgo collinare di Buti, a pochi passi dal centro storico e dai principali servizi, proponiamo in vendita un appartamento al primo piano con ingresso indipendente, situato in una zona tranquilla e panoramica, ai piedi dei Monti Pisani.
L’immobile è inserito in un contesto residenziale riservato e rappresenta la soluzione ideale per chi desidera vivere nella quiete della natura, senza rinunciare alla comodità di tutti i servizi raggiungibili a piedi: alimentari, farmacia, banca, poste, fermate autobus.
⸻
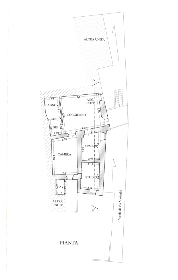
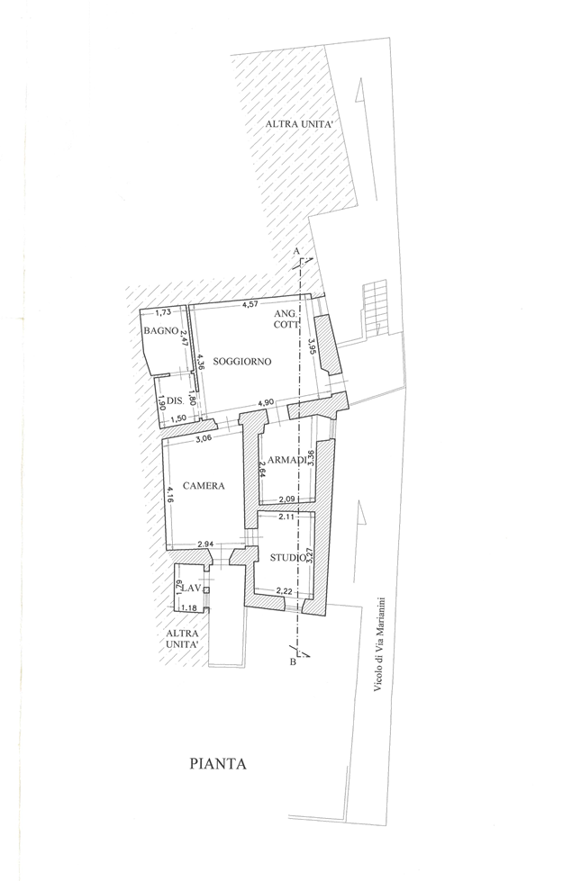
Composizione interna:
Accesso da scala esterna esclusiva che conduce al piano primo, dove troviamo:
• Ampio soggiorno con angolo cottura
• Camera matrimoniale con accesso a terrazzo privato
• Bagno
• Locale ripostiglio/lavanderia
• Studio
• Stanza armadi (utilizzabile anche come seconda camera o locale hobby)
L’immobile si presenta allo stato grezzo e necessita di lavori di ristrutturazione, offrendo quindi un’ottima opportunità per personalizzare gli spazi secondo le proprie esigenze.
⸻
Perché scegliere questo immobile:
• Ingresso indipendente e nessuna spesa condominiale
• Contesto tranquillo, ideale per amanti della natura
• Ottimo rapporto qualità/prezzo
• Ideale come prima casa, casa vacanze o investimento
• Possibilità di personalizzazione totale
⸻
Buti: tra storia, natura e tradizione
Buti è un borgo toscano ricco di fascino, adagiato sulle pendici orientali del Monte Pisano, immerso in boschi di pini e castagni.
Famoso per il suo pregiato olio d’oliva, il Palio delle Contrade di gennaio e per i numerosi eventi culturali e gastronomici durante tutto l’anno.
Posizione comoda per raggiungere:
• Pisa (aeroporto) → 30 minuti
• Lucca → 30 minuti
• Firenze e Siena → circa 1h30
⸻
Classe energetica: G
Rif. 2278-L
Prezzo trattabile: si
Categoria: residenziale
Tipologia: appartamento
Provincia: PI
Comune: Buti
Piano: 1
Frazione/Quartiere:
Indirizzo: vic Rietto, 4
Classe energetica: G
Indice di prestazione energetica: kwm2 – 232323.00
Vani: 4
Camere: 2
Camere matrimoniali: 1
Bagni: 1
Cucina: abitabile
Soggiorno: si
La Struttura Dispone Di
- Ingresso indipendente
- Nostra esclusiva




