Giardino – Ponsacco NOSTRA ESCLUSIVA CANTIERE EX VITAMINOL Prossima realizzazione di quadrifamiliare composta da due appartamenti indipendenti a piano terra con possibilità di taverna collegata e due appartamenti indipendenti al primo piano con giardino e loggiato, il tutto il classe A4!
Cantiere Ex Vitaminol , ultimo lotto disponibile, appartamenti indipendenti di circa 120 m2 con tre camere e doppi servizi!
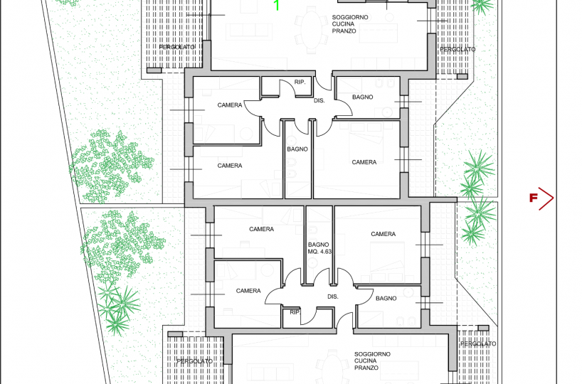
In ottima zona residenziale adiacente Pontedera,proponiamo in vendita appartamento numero 2, sito a piano terra con ingresso indipendente composto da ampia zona giorno di circa 45 m2 suddivisa tra cucina abitabile e soggiorno, disimpegno notte, camera matrimoniale, camera doppia e camera singola, doppi servizi e ripostiglio. Da scala interna in muratura arriviamo in una taverna di circa 50 m2 con possibilità di definire rifiniture e impiantistica a parte. Completano la proprietà due posti auto privati in corte comune, loggiato di 16 m2 e giardino di circa 80 m2. Capitolato di alta qualità, tra le caratteristiche principali troviamo: riscaldamento a pavimento con pompa di calore, pannelli fotovoltaici 6kw, infissi in legno, tapparelle orientabili e motorizzate. È inoltre predisposto per l'impianto d'allarme, l'impianto addolcitore acqua e l'impianto di climatizzazione. Possibilità di personalizzazione degli interni.
Classe energetica A++++ (A4) – Rif. 2330-A
Categoria: residenziale
Tipologia: appartamento
Provincia: PI
Comune: Ponsacco
Frazione/Quartiere: Giardino
Indirizzo: via di Scopeto, 22
Classe energetica: A4
Indice di prestazione energetica: kwm2 – 1.00
Vani: 5
Camere: 3
Camere doppie: 1
Camere singole: 1
Camere matrimoniali: 1
Bagni: 2
Cucina: abitabile
Soggiorno: si
Giardino privato: mq80
Posti auto: 2
La Struttura Dispone Di
- Giardino
- Ingresso indipendente
- Nostra esclusiva




