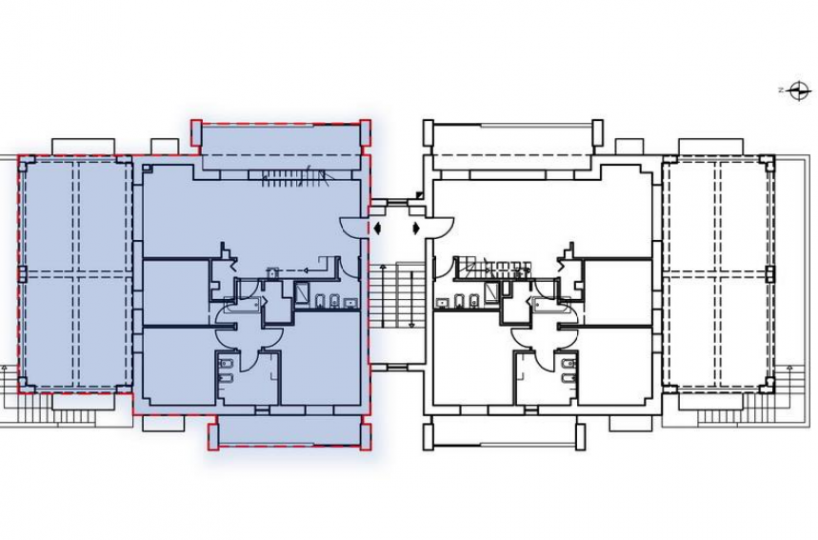
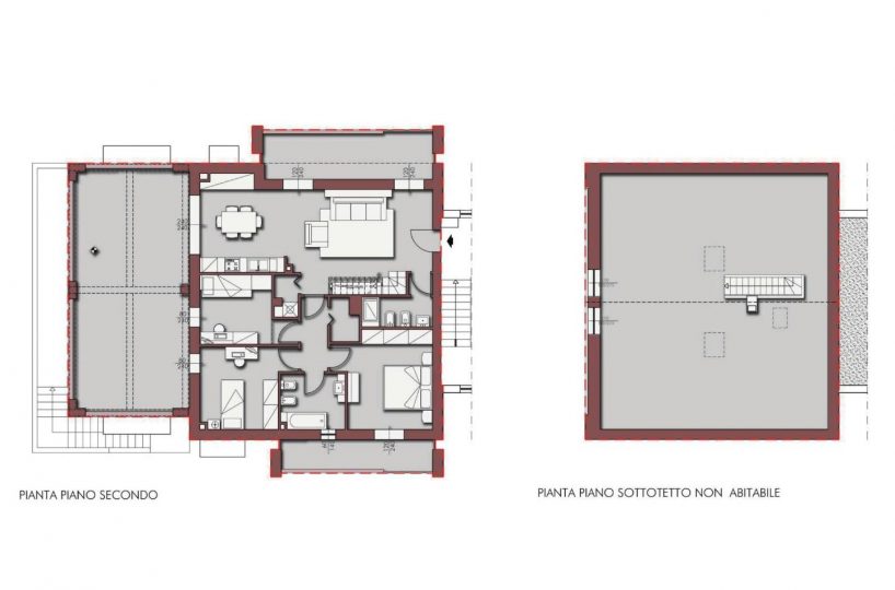
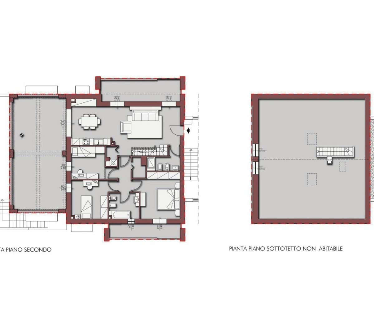
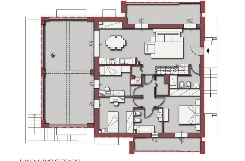
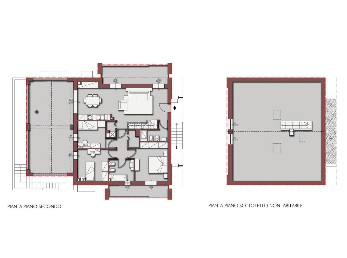
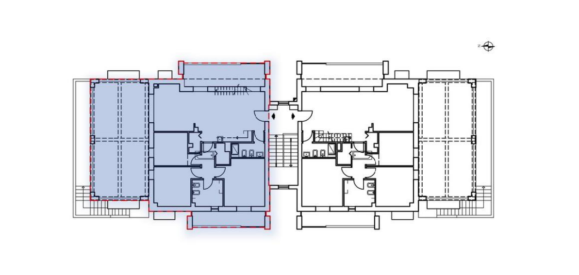
La Borra – Pontedera- Vendesi Attico posto al secondo ed ultimo piano di un condomio di nuova costruzione. L’immobile libero su tre lati si compone in: ingresso in ampia zona giorno in open space con doppio terrazzo, bagno di servizio; disimpegno, camera matrimoniale con ulteriore terrazzo, 2 camerette, bagno e ripostiglio. Salendo ulteriormente al piano sottotetto troviamo un’ ampia mansarda abitabile da adibire ad ulteriore zona living o quarta camera. Completano la proprietà la fantastica terrazza abitabile di mq 45 e il garage esclusivo di mq 15. DOTAZIONI: cappotto termico, Impianto di riscaldamento a pavimento centralizzato a gestione autonoma con impianto solare termico e impianto di addolcitore, predisposizione allarme e condizionatore. Classe energetica: A1 – Rif. 1693-AL

Prezzo trattabile: si

Categoria: residenziale
Tipologia: attico
Provincia: PI
Comune: Pontedera
Piano: 2
Frazione/Quartiere: La Borra
Indirizzo: via dei Ciliegi, 20
Classe energetica: A1
Indice di prestazione energetica: kwm2 – 20.00

Vani: 5
Camere: 3
Camere doppie: 1
Camere singole: 1
Camere matrimoniali: 1
Bagni: 2
Cucina: soggiorno cucina
Soggiorno: si
Garage: si
Posti auto: 2
Terrazzo: mq45

La Struttura Dispone Di

  • Garage