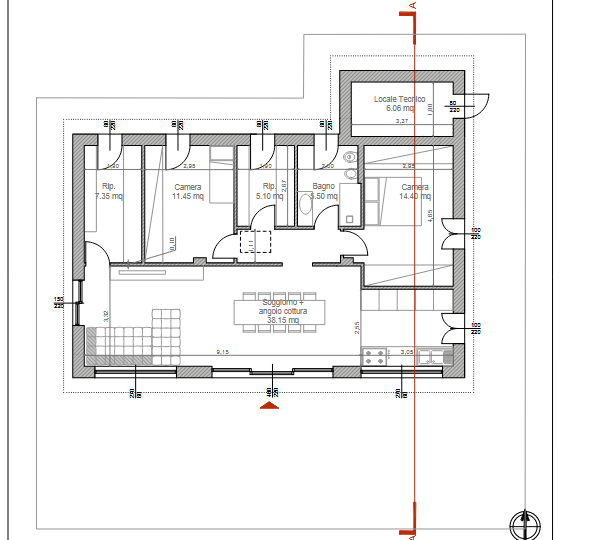
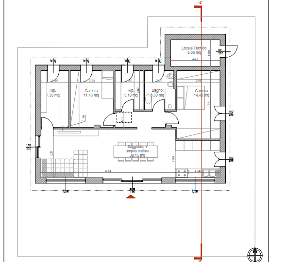
Pontedera – Oltrera – Vendesi viareggina di nuova costruzione. L’immobile libero su quattro lati si compone in: ampia zona giorno unico ambiente di 40mq con angolo cottura e ripostiglio/dispensa, disimpegno, camera matrimoniale, camera doppia, bagno e ulteriore ripostiglio che potrebbe essere trasformato nel secondo bagno della casa. Completa la proprietà il grande giardino di circa 1000 mq sui quattro lati dell’ immobile con garage e porticato esterno. Zona tranquilla vicina a tutti i servizi. MASSIMA EFFICENZA ENERGETICA. L’IMMOBILE VIENE VENDUTO COMPLETATO CON RIFINITURE DI PREGIO E CHIAVI IN MANO.Classe energetica: A4.
NOTE DELL’AGENZIA: l’immobile è dotato di impianto fotovoltaico, pompe di calore, sistema VMC, cappotto, pozzo a sterro ed è possibile creare una piscina. – Rif. 1616-SL
Categoria: residenziale
Tipologia: viareggina
Provincia: PI
Comune: Pontedera
Frazione/Quartiere: Oltrera
Indirizzo: via Antonio Pacinotti, 11
Classe energetica: A4
Indice di prestazione energetica: kwm2 – 20.00
Vani: 5
Camere: 3
Camere singole: 2
Camere matrimoniali: 1
Bagni: 2
Cucina: abitabile
Soggiorno: si
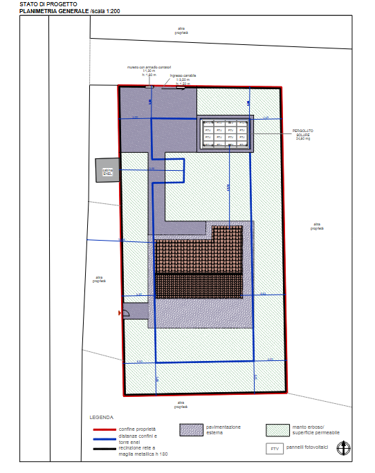
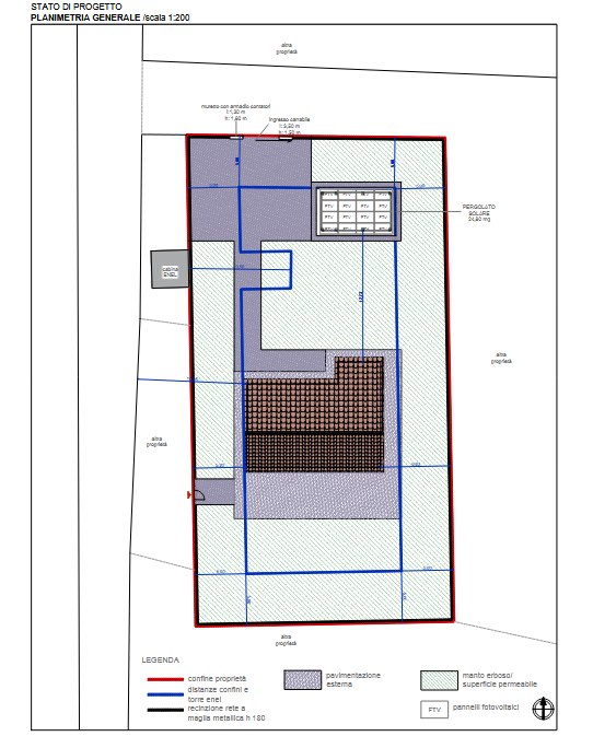
Giardino privato: mq1000
Garage: si
Posti auto: 5
La Struttura Dispone Di
- Garage
- Giardino
- Ingresso indipendente




