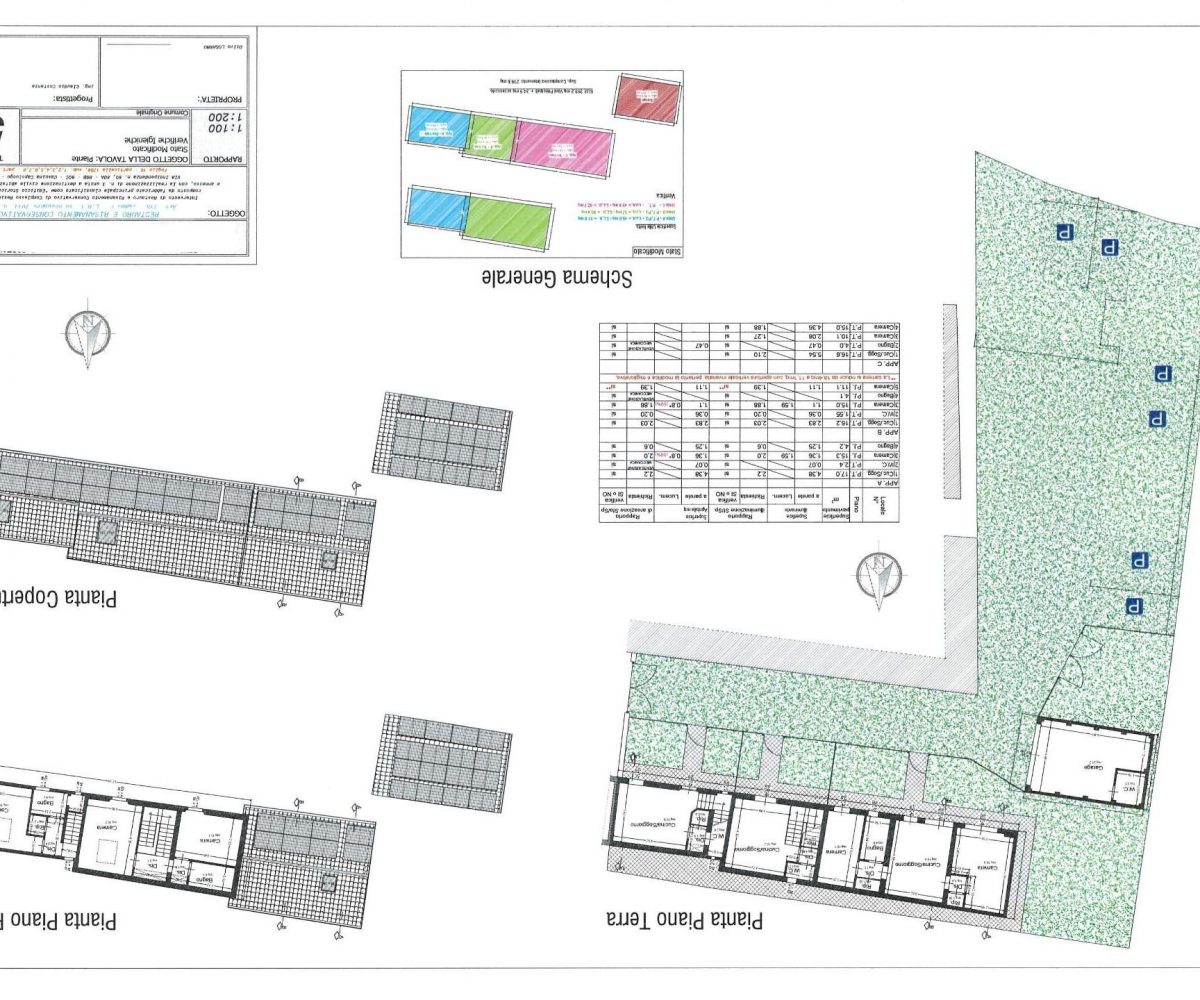
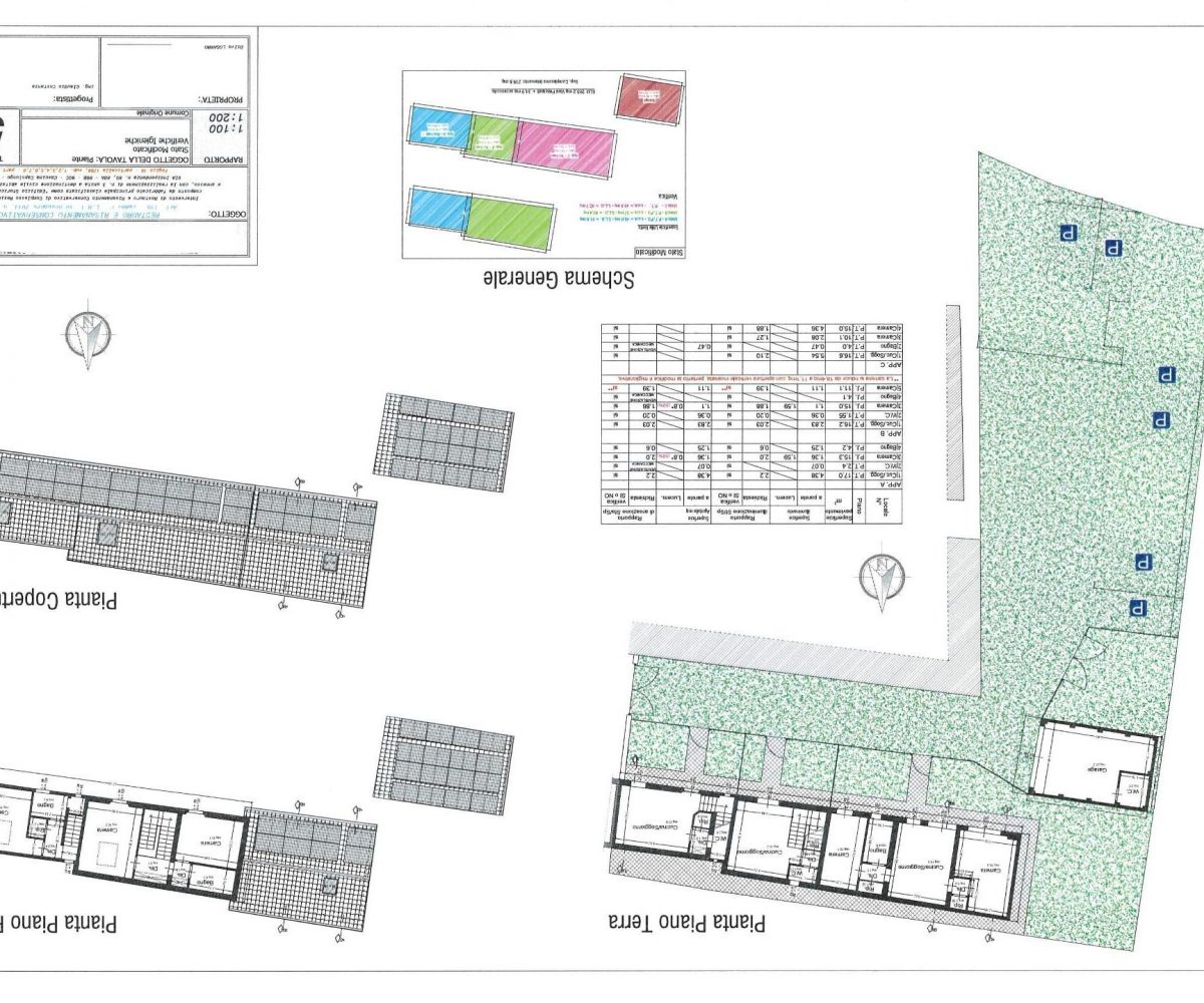
CAPOLUOGO – Cascina NOSTRA ESCLUSIVA!! Nella zona centrale, vicino a tutti i servizi, troviamo questo intervento di recupero e ristrutturazione totale di un piccolo complesso esistente. L’operazione prevede la costruzione di tre appartamenti indipendenti con posti auto privati e giardino e un ulteriore magazzino/depandance da vendere separatamente o abbinare ad uno degli appartamenti.
Questo Trilocale stile ”villetta angolare” con ingresso indipendente e situato al piano terra. Caratterizzata da un design moderno e da un’eccellente classe energetica A4, rappresenta un’opportunità unica per chi cerca un immobile all’avanguardia e sostenibile. Composto da Ingresso in cucina soggiorno, ripostiglio, camera matrimoniale, bagno e camera singola. Completa la proprietà ampio giardino di circa 100 m2 e due posti auto privati con piccolo terreno, in corte a comune con le altre unità oggetto dell’intervento. Possibilità di personalizzazione degli interni, delle finiture e delle pertinenze esterne. Capitolato di alto livello, materiali di pregio, classe energetica prevista A4, infissi e persiane in legno, tetto a travi e mezzane in stile toscano. Riscaldamento ad aria canalizzata con predisposizione allarmi e ventilazione meccanica controllata. Dotato di ogni comfort! Per info e documentazione non esitare a contattarci!
Richiesta: Trilocale ”Villetta Angolare” € 275.000
Classe energetica: A4 – Rif. 2283-A
Categoria: residenziale
Tipologia: villetta a schiera
Provincia: PI
Comune: Cascina
Frazione/Quartiere:
Indirizzo: via Indipendenza, 70
Classe energetica: A4
Indice di prestazione energetica: kwm2 – 1.00
Vani: 3
Camere: 2
Camere singole: 1
Camere matrimoniali: 1
Bagni: 1
Cucina: nd
Soggiorno: si
Giardino privato: mq80
Posti auto: 2
La Struttura Dispone Di
- Giardino
- Ingresso indipendente
- Nostra esclusiva




