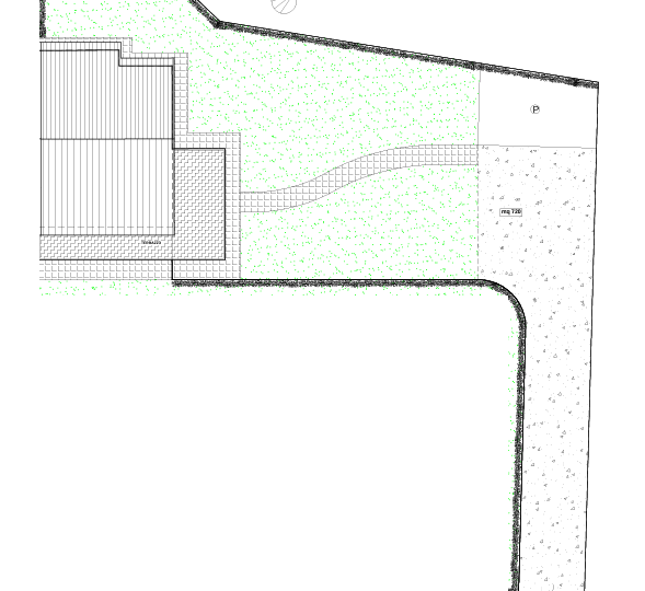
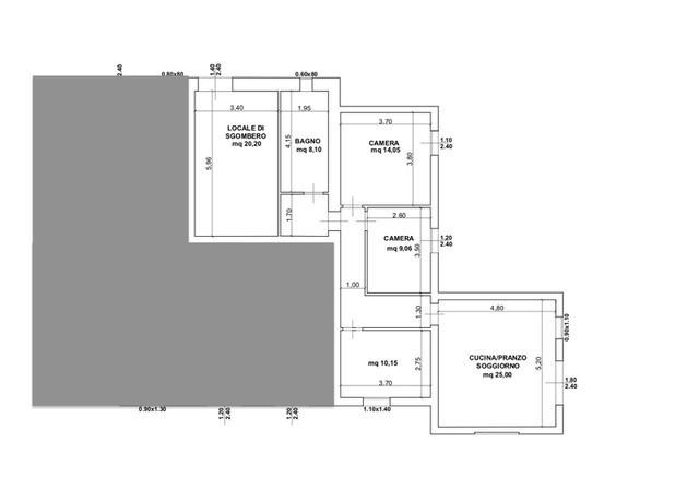
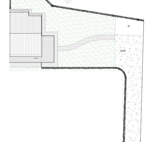
Vicopisano –NUOVA COSTRUZIONE — Vendesi appartamento posto al piano terra con ingresso indipendente facente parte della ristruzione di un casolare di campagna con possibilità di personalizzare le finiture. L'immobile di mq 100 e ampio giardino di mq 700 si compone in: ingresso in ampio soggiorno con cucina a vista, disimpegno notte, tre camere e bagno. completa la proprietà una stanza pluriuso di mq 20. Capitolato con riscaldamento a pavimento, sistema di riscaldamento di ultima generazione con pompa di calore e impianto fotovoltaico di 6kw circa, con accumolo di 10kw circa, impianto di ventilazione meccanica controllata, impianto di climatizzazione estiva, predisposizione di impianto di allarme e addolcitore, infissi in pvc. Tetto in legno lamellare a vista. Classe energetica: A4 – Rif. 1861-L
Prezzo trattabile: si
Categoria: residenziale
Tipologia: appartamento
Provincia: PI
Comune: Vicopisano
Frazione/Quartiere:
Indirizzo: vle V. Veneto, 1
Classe energetica: A4
Indice di prestazione energetica: kwm2 – 32323.00
Vani: 5
Camere: 3
Camere doppie: 1
Camere singole: 1
Camere matrimoniali: 1
Bagni: 2
Cucina: soggiorno cucina
Soggiorno: si
Giardino privato: si
Posti auto: 1
La Struttura Dispone Di
- Giardino
- Ingresso indipendente




