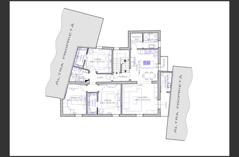
Bientina – In posizione dominante adiacente alla piazza principale vendesi attico di nuova ristrutturazione (pari al nuovo). Si accede all' immobile al piano terra da vano scala condominiale che serve solo due unità abitative. Salendo al secondo ed ultimo piano raggiungiamo l'appartamento che si compone in: ingresso, cucina abitabile con balcone, ampio soggiorno con ulteriore balcone corredato da locale tecnico, bagno, disimpegno notte, 3 ampie camere di cui due con cabina armdi e il secondo bagno della casa. Salendo ulteriormente al piano sottotetto, troviamo due vani adibiti a sottotetto semiabitabile con terrazzo a tasca abitabile con vista panoramica sulla piazza principale. Posizione strategica, centrale e a due passi dai principali servizi. Classe energetica: A4 – Rif. 2185-L
Prezzo trattabile: si
Categoria: residenziale
Tipologia: attico
Provincia: PI
Comune: Bientina
Piano: 2
Frazione/Quartiere:
Indirizzo: pza Vittorio Emanuele II, 7
Classe energetica: A1
Indice di prestazione energetica: kwm2 – 433434.00
Vani: 5
Camere: 3
Camere doppie: 1
Camere matrimoniali: 2
Bagni: 23
Cucina: abitabile
Soggiorno: si




