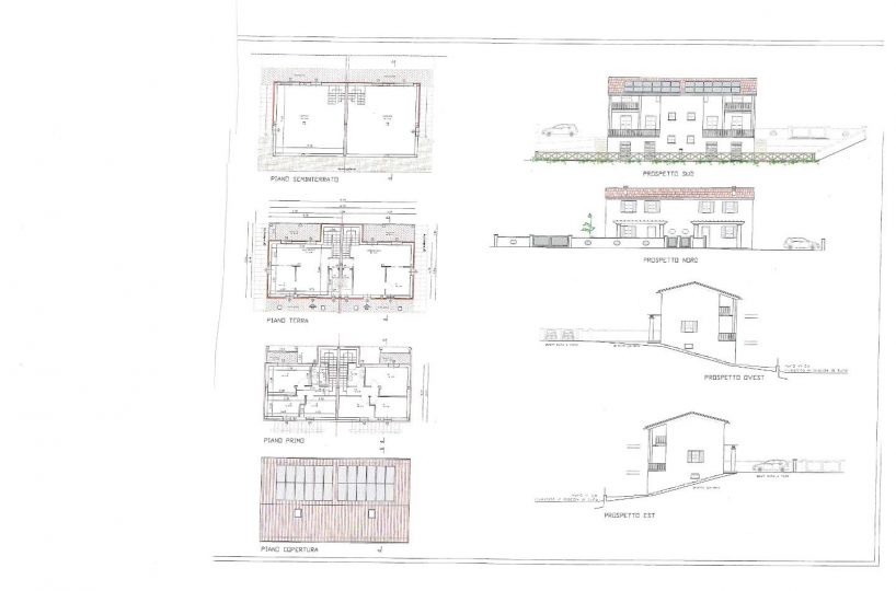
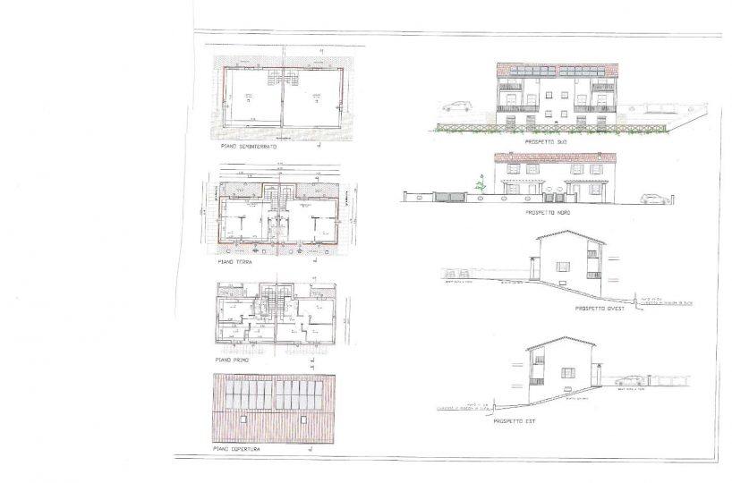
Santa Maria a Monte – Vendesi terreno edif. residenziale di 1175 mq con progetto approvato per un fabbricato bifamiliare o unifamiliare di 209,88 mq e 601,95 mc. Terreno posto in bellissima zona panoramica. – Rif. 1884-s
Categoria: terreni
Tipologia: terreno residenziale
Provincia: PI
Comune: Santa Maria a Monte
Piano: nd
Frazione/Quartiere:
Indirizzo: via Crinale
Classe energetica:
Indice di prestazione energetica: kwm2 – 0.00
Vani: 0
Camere:
Bagni:
Cucina:
Soggiorno: si




