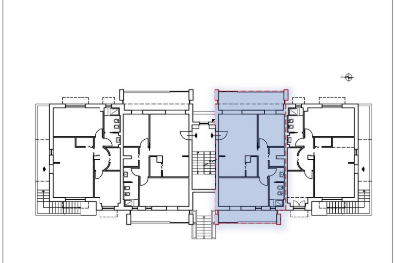
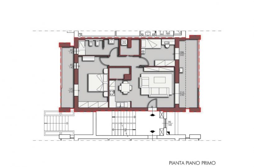
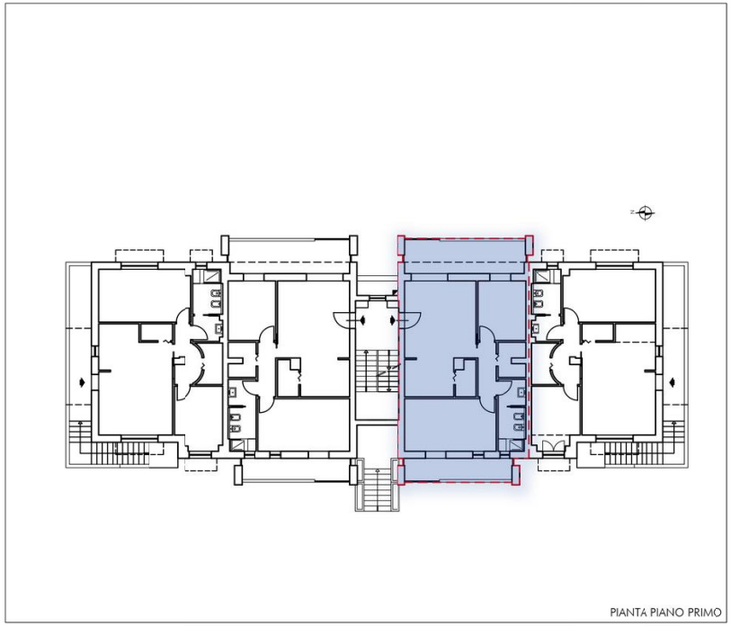
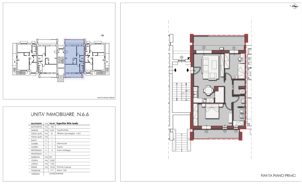
La Borra – Pontedera – Vendesi appartamento posto al primo piano di un piccolo edificio condominiale di nuova costruzione. L’immobile si compone in: ingresso in ampia zona giorno in open space con terrazzo abitabile; disimpegno, camera matrimoniale con secondo terrazzo, cameretta, bagno e ampio ripostiglio. Completa la proprietà il garage esclusivo di mq 15. DOTAZIONI: cappotto termico, Impianto di riscaldamento a pavimento centralizzato a gestione autonoma con impianto solare termico e impianto di addolcitore, predisposizione allarme e condizionatore. Classe energetica: A1 – Rif. 1691-AL
Categoria: residenziale
Tipologia: appartamento
Provincia: PI
Comune: Pontedera
Piano: nd
Frazione/Quartiere: La Borra
Indirizzo: via dei Ciliegi, 14
Classe energetica: A1
Indice di prestazione energetica: kwm2 – 20.00
Vani: 3
Camere: 2
Camere doppie: 1
Camere matrimoniali: 1
Bagni: 1
Cucina: soggiorno cucina
Soggiorno: si
Garage: si
Posti auto: 2
La Struttura Dispone Di
- Garage




