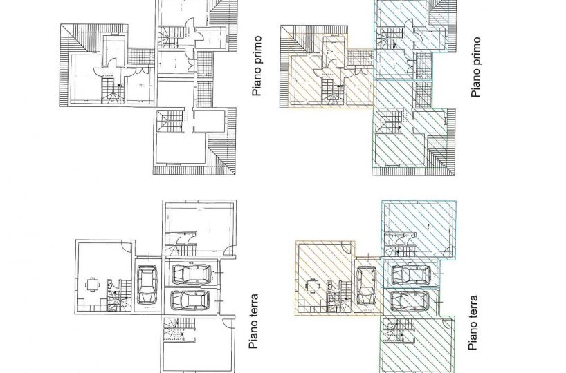
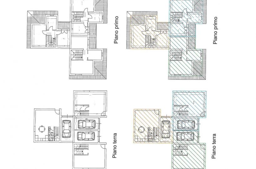
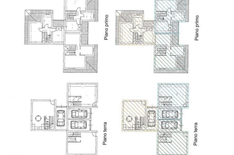
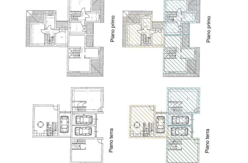
Cascine di Buti – Vendesi Terreno Edificabile sul quale è possibile realizzare una trifamiliare, bifamiliare o monofamiliare di circa 350 mq oltre a resede esclusivo di circa 900 mq. Terreno posto in ottima zona residenziale e vicino a tutti i maggiori servizi. N.B. le immagini sono progetti non ancora approvati e modificabili. Rif. 1476-s
Prezzo trattabile: si
Categoria: terreni
Tipologia: terreno residenziale
Provincia: PI
Comune: Buti
Piano: nd
Frazione/Quartiere: Cascine
Indirizzo: Cascine-la Croce PI, 56032 56032
Classe energetica:
Indice di prestazione energetica: kwm2 – 0.00
Vani: 0
Camere:
Bagni:
Cucina:
Soggiorno: si
La Struttura Dispone Di
- Nostra esclusiva




